madariaga.gob.ar
Santoro se reunió con Agustina Vila, Directora de Cultura y Educación de la Provincia de Buenos Aires

Santoro se reunió con Agustina Vila, Directora de Cultura y Educación de la Provincia de Buenos Aires

El encuentro con la funcionaria fue solicitado por el intendente local, Esteban Santoro, quien fue acompañado por el concejal Marcos Jovanovic, donde analizaron la situación educativa en general del distrito.

Educación

A pedido del Intendente Santoro, que estuvo acompañado por el concejal Marcos Jovanovic, se realizó una reunión en el Ministerio de Educación de la Provincia de Buenos Aires con la responsable del área,  Agustina Vila, Directora de Cultura y Educación de la Provincia, quien a su vez estuvo acompañada de dos funcionarias.
El temario de la reunión se desarrolló sobre las diversas obras encaradas en establecimientos escolares tanto por parte de la provincia como del municipio.

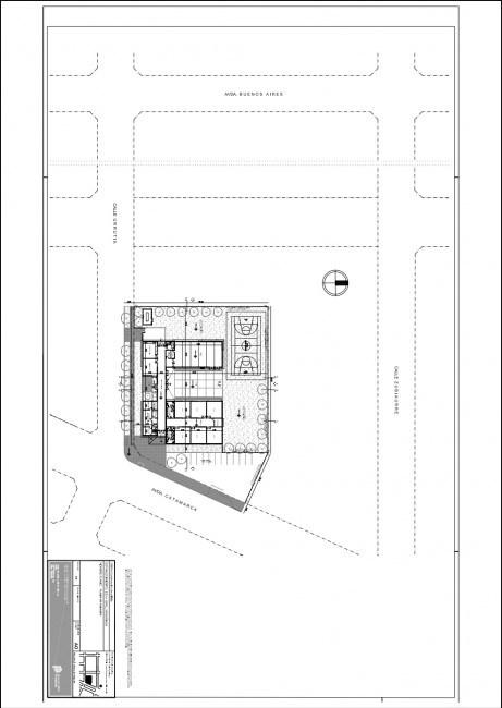
El mandatario Santoro llevó información y planos sobre la futura escuela secundaria n° 5 a emplazarse en calle Urrutia y Av.Catamarca. Respecto a esto, las gestiones municipales se iniciaron en el año 2017 con las autoridades provinciales de ese entonces, y en el año 2018 se logro contar con el plano. La obra que representa una superficie de 1000m2 cubiertos y contará con 6 aulas para los alumnos, salón de usos múltiples, laboratorio, sanitarios, sector para directivos y biblioteca tiene un costo aproximado actual de 130 millones de pesos.

La Ministra se comprometió en la posibilidad de buscar avanzar en la concreción de la obra con financiamiento nacional, y el municipio, por su parte, a través del intendente de realizar en lo inmediato el proyecto ejecutivo de la obra en los términos de la reglamentación provincial.